赤穂市空き家 第141号
| 物件番号 | 第141号 | ||
|---|---|---|---|
| 物件種別 | 一戸建て | ||
| 価格 | 下記「詳細」より、赤穂市HPをご確認ください | ||
| 取引種別 | 売買 | ||
| 築年月 | 昭和53年7月 | ||
| 補修の要否 | 多少の補修が必要 | ||
| 土地(地目/面積) | 宅地/165.30㎡ | ||
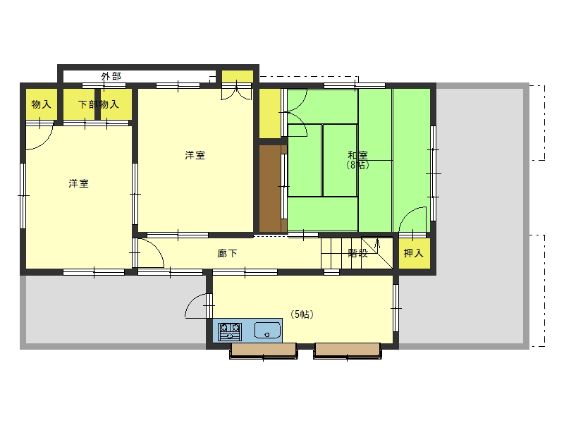
| 建物(面積) | 149.17㎡(1階 97.62㎡ 2階 51.55㎡) | ||
| 構造 | 鉄骨2階建て | ||
| 間取り | 6LDK | ||
| 都市計画 | 市街化区域 | ||
| 用途地域 | 第1種中高層住居専用地域 | ||
| 電気 | 関西電力 | ||
| ガス | プロパンガス | ||
| 上水道 | 公営 | ||
| 下水道 | 公営下水 | ||
| トイレ | 水洗 | ||
| 駐車場 | 有り | ||
| 所在地 | 兵庫県赤穂市尾崎 | ||
| 最寄り駅 | 山陽本線「播州赤穂駅」 車で約9分 | ||
| その他 | 現状オール電化 | ||
※図面と現況が異なる場合は、現況を優先とします。
※掲載物件は成約済み・売却中止となる場合があります。
※掲載物件は成約済み・売却中止となる場合があります。


